14609 Rue Aumais, apt. 1
Montréal (Pierrefonds-Roxboro), Pierrefonds/Central West, H9H4X3Apartment | MLS: 26642647
- 3 Bedrooms
- 1 Bathrooms
- Video tour
- Calculators
- walkscore
Description
Would you like to enjoy condo living without feeling cramped? This over 1,200 sq. ft. unit offers a 290 sq. ft. elevated outdoor terrace as well as a front balcony. A corner unit with windows on three sides, it features 3 bedrooms, wood floors, air conditioning, and one indoor garage parking space. All this, just steps from services and public transportation. The rear windows and patio door are brand new; the remaining windows and front patio-door will be replaced in 2026. The special assessment related to this project will be fully paid by the seller.
Inclusions : Stove, refrigerator, dishwasher, washer and dryer (all without any warranty as to their working condition), as well as window coverings and light fixtures.
Exclusions : N/A
| Liveable | 113.8 MC |
|---|---|
| Total Rooms | 6 |
| Bedrooms | 3 |
| Bathrooms | 1 |
| Powder Rooms | 0 |
| Year of construction | 1988 |
| Type | Apartment |
|---|---|
| Style | Semi-detached |
| Co-ownership fees | $ 5592 / year |
|---|---|
| Municipal Taxes (2025) | $ 2256 / year |
| School taxes (2025) | $ 264 / year |
| lot assessment | $ 84900 |
| building assessment | $ 321200 |
| total assessment | $ 406100 |
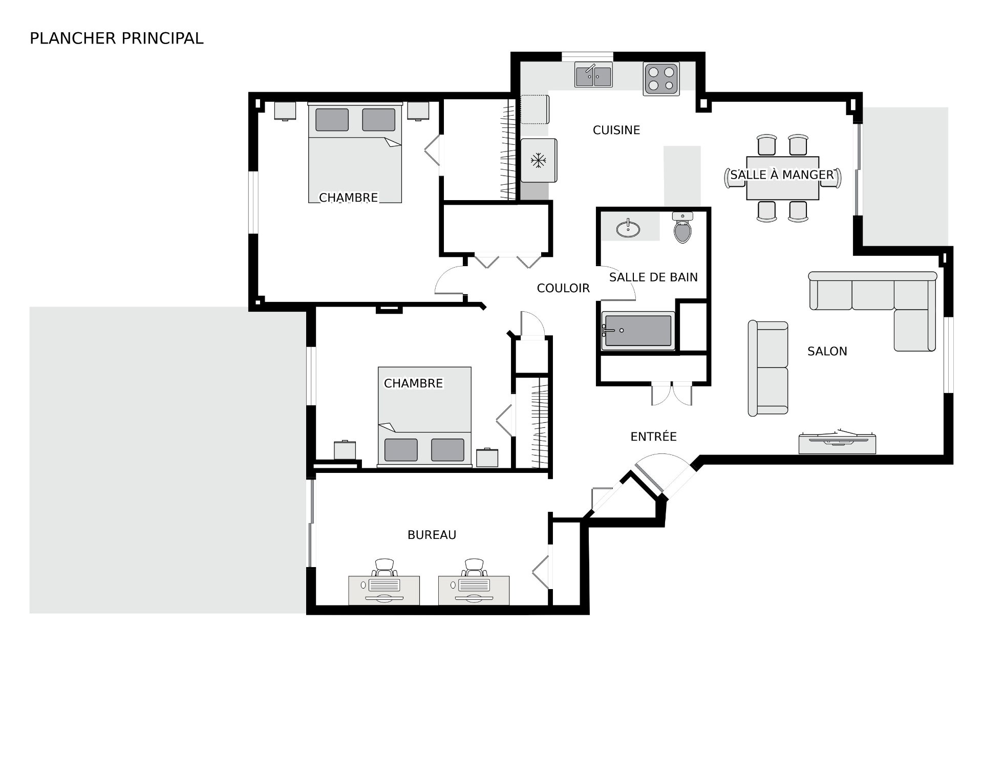
Room Details
| Room | Dimensions | Level | Flooring |
|---|---|---|---|
| Living room | 13 x 15.4 P | Ground Floor | Wood |
| Dining room | 10.2 x 9.6 P | Ground Floor | Wood |
| Kitchen | 11.9 x 9.8 P | Ground Floor | Ceramic tiles |
| Primary bedroom | 12.2 x 13.4 P | Ground Floor | Wood |
| Bedroom | 10.9 x 13.3 P | Ground Floor | Wood |
| Bedroom | 8.9 x 15.3 P | Ground Floor | Wood |
| Bathroom | 7 x 8.9 P | Ground Floor | Ceramic tiles |
| Storage | 4.5 x 6.6 P | Ground Floor | Linoleum |
Charateristics
| Windows | Aluminum, PVC |
|---|---|
| Driveway | Asphalt |
| Roofing | Asphalt shingles |
| Proximity | Bicycle path, Cegep, Daycare centre, Elementary school, Golf, High school, Hospital, Park - green area, Public transport, Réseau Express Métropolitain (REM) |
| Siding | Brick |
| Heating system | Electric baseboard units |
| Equipment available | Electric garage door, Entry phone, Private balcony, Wall-mounted air conditioning |
| Heating energy | Electricity |
| Garage | Fitted, Heated, Single width |
| Window type | French window, Sliding |
| Parking | Garage |
| Available services | Indoor storage space, Visitor parking, Yard |
| Cupboard | Melamine |
| Sewage system | Municipal sewer |
| Water supply | Municipality |
| Restrictions/Permissions | Pets allowed with conditions |
| Zoning | Residential |
